Внимание!
26 апреля в ЖК ДОСТИЖЕНИЕ состоится день открытых дверей. Запись обязательна! 664-555
Жилой комплекс
“
НОВАЯ ИСТОРИЯ
”
+7(485)266-45-55
DeVelop76
DeVelop76
Главная
Проекты
Всё для комфортной жизни!
Преимущества
Первые этажи - площади для бизнеса
Продуманные планировочные решения
Дизайнерские входные группы
Витражное остекление
Премиальный кирпич
Всё для комфортной жизни!
Посмотрите выбранные планировки наглядно!
в продаже
выбранные
бронь
продано
Планировки квартир
Выберите количество комнат и отметьте нужные вам планировки
выберите число комнат
1к
2к
3к
Все
1-комнатные
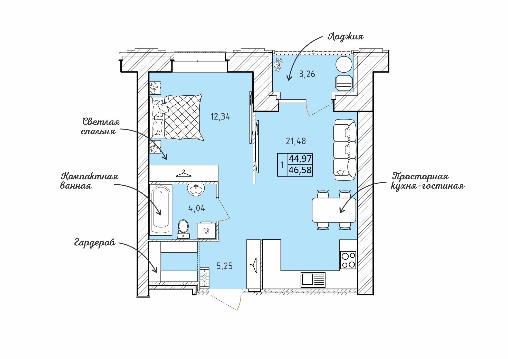
1 комнатная квартира 46.58 1 этаж
Общая площадь
46,58 кв.м.
В продаже
1 квартира
1 комнатная квартир, 46.44
Общая площадь
46,44 кв.м.
В продаже
7 квартир
1 комнатная квартира 46.00
Общая площадь
46 кв.м.
В продаже
нет
1 комнатная квартира второй этаж 45.76
Общая площадь
45,76 кв.м.
В продаже
8 квартир
1 комнатная квартира 3-9 этаж
Общая площадь
46 кв.м.
В продаже
нет
1 комнатная квартира 46.35 3-9 этаж
Общая площадь
46,35 кв.м.
В продаже
нет
2-комнатные
2 х комнатная квартира 74.12 3-9 этаж
Общая площадь
74,12 кв.м.
В продаже
нет
2 х комнатная первый этаж 60,34 1 этаж
Общая площадь
60,10 кв.м.
В продаже
1 квартира
2х комнатная квартира 67.19
Общая площадь
67,19 кв.м.
В продаже
нет
2 х комнатная квартира 67.19 3-9 этаж
Общая площадь
67,19 кв.м.
В продаже
6 квартир
2 х комнатная квартира 74.12
Общая площадь
74,12 кв.м.
В продаже
нет
66.18 2 х комнатная квартира
Общая площадь
66,18 кв.м.
В продаже
8 квартир
2х комнатная квартира, 73.71
Общая площадь
73,71 кв.м.
В продаже
8 квартир
2х комнатная квартира 2 этаж 66.09
Общая площадь
66,18 кв.м.
В продаже
нет
3-комнатные
3 х комнатная квартира 96.7
Общая площадь
96,70 кв.м.
В продаже
7 квартир
3 х комнатная квартира 74.42
Общая площадь
74,42 кв.м.
В продаже
7 квартир