Внимание!
26 апреля в ЖК ДОСТИЖЕНИЕ состоится день открытых дверей. Запись обязательна! 664-555
Жилой комплекс
“
НОВАЯ ИСТОРИЯ
”
+7(485)266-45-55
DeVelop76
DeVelop76
Главная
Проекты
НОВАЯ ИСТОРИЯ
Все планировки квартир ЗДЕСЬ. ЖМИ!
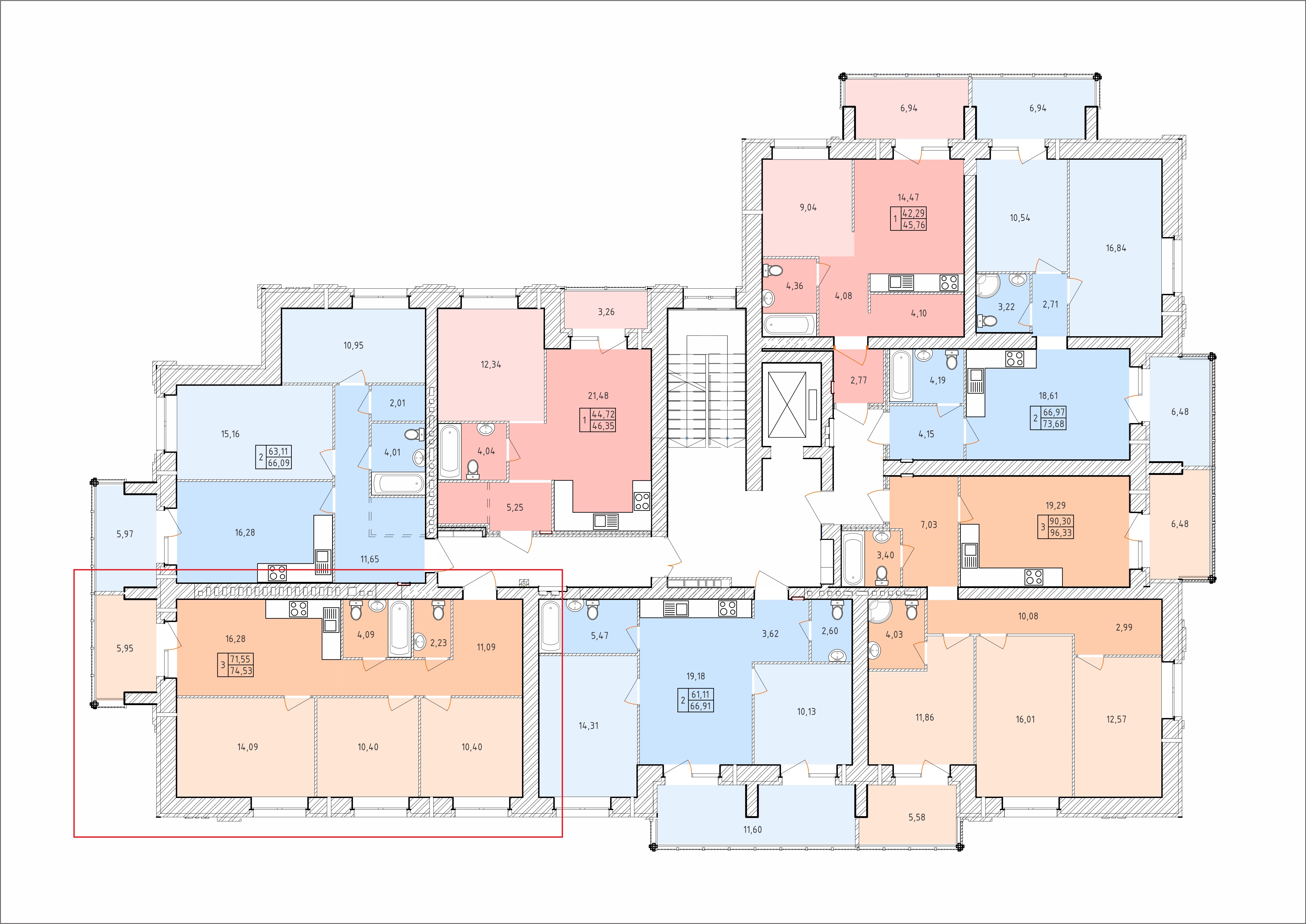
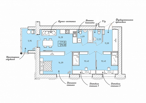
3-комн. квартира, 74.42м²
Планировка квартиры
Отправить
по email
Распечатать
планировку
Смотреть все
планировки
Характеристики планировки
ЖК «НОВАЯ ИСТОРИЯ»
Все планировки квартир ЗДЕСЬ. ЖМИ!
Ярославская область, Ярославль, Северный жилой район, улица Елены Колесовой, 6
Количество комнат
3
Жилая площадь
34,89 кв.м.
Номер квартиры
14 — 7
Общая площадь
74,42 кв.м.
План квартиры
Загрузить
Площадь кухни
16,28 кв.м.
Этаж
2 — 8
Свободных квартир
7 из 8
забронировать квартиру
Рассчитать
ипотеку онлайн
3 х комнатная квартира 74.42
в продаже
выбранные
бронь
продано
ЖК НОВАЯ ИСТОРИЯ
Инфраструктура
магазины
школы
больницы
кинотеатры
Фитнес-центры
Парки и скверы