Внимание!
Из за нестабильной экономической ситуации , в скором времени, опять будут вносится изменения в условиях по "Семейной ипотеке". Успей купить квартиру по выгодной ставке. Телефон 664-555.
Жилой комплекс
“
London Парк
”
+7(485)266-45-55
DeVelop76
DeVelop76
Главная
Проекты
London Парк
London ПАРК
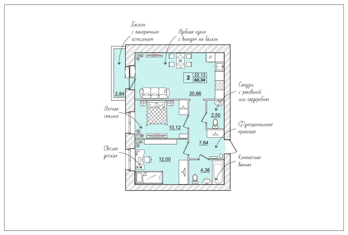
2-комн. квартира, 60.34м²
Планировка квартиры
Отправить
по email
Распечатать
планировку
Смотреть все
планировки
Характеристики планировки
ЖК «London Парк»
ЖМИ! ПЛАНИРОВКИ ЗДЕСЬ
Ярославская область, Ярославль, посёлок Средний
Количество комнат
2
Жилая площадь
22,12 кв.м.
Общая площадь
60,34 кв.м.
План квартиры
Загрузить
Площадь кухни
20,86 кв.м.
забронировать квартиру
Рассчитать
ипотеку онлайн
3D-тур по квартире
2-комнатная квартира 60,34 -1 подъезд
в продаже
выбранные
бронь
продано
ЖК London Парк
Рекомендуем
Планировки с такой же площадью и количеством комнат
2-ка 60,34-1 подъезд
Общая площадь
60,34 кв.м.
В продаже
нет
2-ка 63,51 5 подъезд
Общая площадь
63,51 кв.м.
В продаже
нет
2-комнатная квартира 58.85 -2 подъезд
Общая площадь
58,85 кв.м.
В продаже
нет
2-комнатная квартира 59.80 -2 подъезд
Общая площадь
59,80 кв.м.
В продаже
нет
2-комнатная квартира 60.33 -2 подъезд
Общая площадь
60,33 кв.м.
В продаже
нет
2-комнатная квартира 60.67 -3 подъезд
Общая площадь
60,67 кв.м.
В продаже
нет
2х комнатная квартира 60,67-4 подъезд
Общая площадь
60,67 кв.м.
В продаже
нет
Инфраструктура
магазины
школы
больницы
кинотеатры
Фитнес-центры
Парки и скверы