Внимание!
Внимание! с 01.04.2026 года произойдет плановое поднятие цен в наших ЖК. 664-555.
Жилой комплекс
“
Лондон Парк
”
+7(485)266-45-55
DeVelop76
DeVelop76
Главная
Проекты
Лондон Парк
London ПАРК
Секция 5
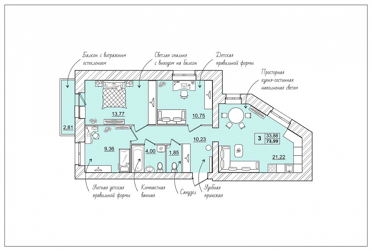
3-комн. квартира, 73.99м²
ЖК “Лондон Парк” Ярославская область, Ярославль, Клубная улица, 14
Отправить
по email
Распечатать
квартиру
Удалить
из избранного
Добавить
в избранное
Характеристики квартиры
ЖК «Лондон Парк»
ЖМИ! ПЛАНИРОВКИ ЗДЕСЬ
Ярославская область, Ярославль, посёлок Средний
Жилая площадь
33,88 кв.м.
Количество комнат
3
Номер квартиры
80
Общая площадь
73,99 кв.м.
План квартиры
9531
Площадь кухни
21,22 кв.м.
Статус
Забронирована
Этаж
2
Выбранная Вами квартира на данный момент зарезервирована. Оставьте свои контактные данные ниже на тот случай, если квартира будет снята с резерва, или мы найдем идентичный этому вариант квартиры.
хочу такую же
3D-тур по квартире
План этажа
ЖК Лондон Парк
Инфраструктура
магазины
школы
больницы
кинотеатры
Фитнес-центры
Парки и скверы